TL84 Typhoon-Resistant Aluminum Lift and Slide Window

TL84 Typhoon-Resistant Aluminum Lift and Slide Window

Introduction:

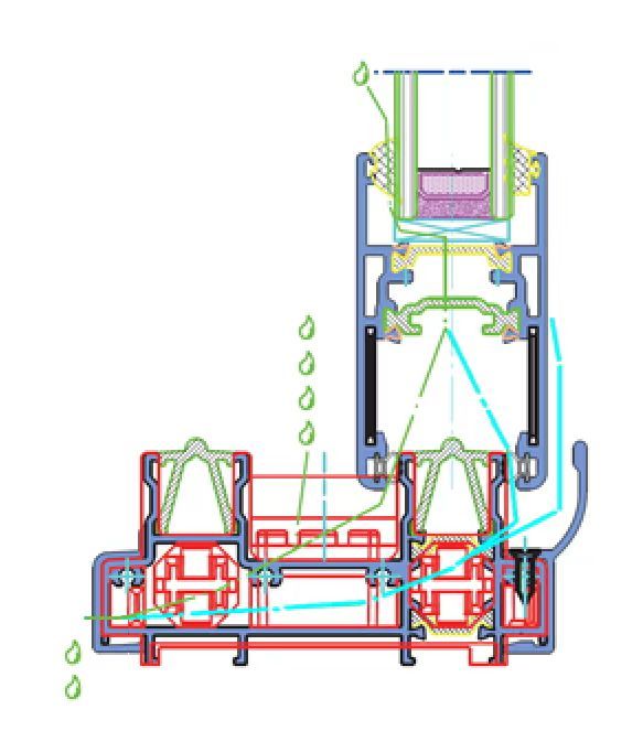
TRYBA’s typhoon-resistant lift and slide window combines cutting-edge engineering with Italian Giesse T-REX technology to withstand Level 12 typhoons. Its Z-shaped thermal-break design maximizes insulation and energy efficiency, while the multi-channel drainage system—featuring a high-capacity reservoir and one-way valve—guarantees leak-free performance even in extreme weather. Enhanced by TPE sealing strips, it delivers unmatched airtightness and water resistance, with effortless operation and a secure anti-misoperation safety lock. Built for strength, efficiency, and peace of mind, TRYBA redefines high-performance windows.
CONTACT US

BASIC CONFIGURATION

样角图


Profile84mm Thermal Break Aluminum 6063-T5
Thickness1.8mm
Insulation Strip16mm+26mm PA66+GF25
Sealing SystemTPE
Glass5G+12A+5G
Hardware60kg-120kg lift-and-slide components
HandleGIESSE Handle
Surface TreatmentPowder Coating / Renolit Film
U-value1.8~2.5

045718cd-ec34-4cf0-a884-7b050277f3e2(2)


Note: The above parameters are laboratory data; actual values may vary.

SECTION DRAWING

剖面图1

剖面图2

剖面图3

剖面图4

COLORS

Surface Treatment: Powder Coating

  • BLACK
    BLACK
  • COFFE
    COFFE
  • GREY
    GREY
  • WHITE
    WHITE

Surface Treatment:German Renolit Film

  • Chartwell Green renolite film
  • Slate Grey Finesse renolite film
  • Gardinal Plantin renolite film
  • Crown Plantin renolite film
  • Black Ulti-Matt renolite film
  • Anthracite Grey renolite film
  • Weiss_White renolite film
  • Earl Platinum renolite film
  • Ginger Oak Super-Matt renolite film
  • Yakisugi renolite film
  • Wine Red renolite film
  • Chocolate renolite film
  • Dark Blue renolite film
  • Moss Green renolite film
  • Dark Green renolite film
  • Honey Osk Super-Matt renolite film
  • Weissbach Eiche VLF renolite film
  • Monument Oak renolite film
  • Winchester XC renolite film
  • Rustic Cherry renolite film
  • Golden Oak renolite film
  • Mahogany renolite film
  • Winchester XA renolite film
  • Swamp Oak ST-F renolite film
  • Cherry renolite film
  • Rustic Oak renolite film
  • Nature Oak renolite film

NOTE:If you need more customization requirements,please freely contact us for more information.

RELATED PRODUCTS

Online Message

contact trybawindows
Submit